Franky

Franky propose un ensemble de 24 logements, du studio au 4 ½, ainsi que trois locaux commerciaux, situés à l’angle du boulevard des Capucins et de la rue de Beaujeu. Au rez-de-chaussée, les commerces s’ouvrent sur le boulevard, tandis que les logements aux étages bénéficient d’une entrée commune plus discrète, accessible depuis la rue résidentielle adjacente. Cette configuration établit une relation intuitive entre les rues et les usages.

Devant les commerces, des espaces couverts et des îlots végétalisés créent des lieux de passage, d’échange et de rencontre agréables, jouant un rôle clé dans le renforcement des liens sociaux.

La volumétrie et la palette de couleurs du projet s’inspirent du contexte bâti environnant, tout en permettant de marquer les changements d’usage et d’atténuer la hauteur apparente du bâtiment. Le rez-de-chaussée, paré d’un revêtement léger et contrastant, se distingue des étages supérieurs en maçonnerie tant par sa matérialité que par sa hauteur sous plafond généreuse. Conçu pour offrir une grande flexibilité, le projet permet une adaptation future des espaces commerciaux en fonction des besoins évolutifs du quartier.

Conçu sans stationnement automobile, Franky mise sur le transport actif et collectif, réduisant à la fois l’empreinte écologique, les coûts de construction et les loyers. Libéré des voitures, le sous-sol accueille plutôt de généreux espaces de rangement à vélos, communs et privés. Son succès est manifeste : toutes les unités ont été louées avant même la fin du chantier, confirmant l’intérêt croissant pour ce type de programme.

Franky illustre ainsi une démarche de densification réfléchie, alliant qualité de vie, mixité des usages et respect de l’environnement, tout en contribuant à la vitalité et à la cohésion sociale du quartier.

Type de projet : Multifamilial
Année de construction : 2024
Localisation : Boulevard des Capucins, Québec
Client : Développement Émeraude
Entrepreneur : Construction St-Pierre Roseberry
Photographe : Anne Rousseau

Le sac de Franky - Disponible ici

 

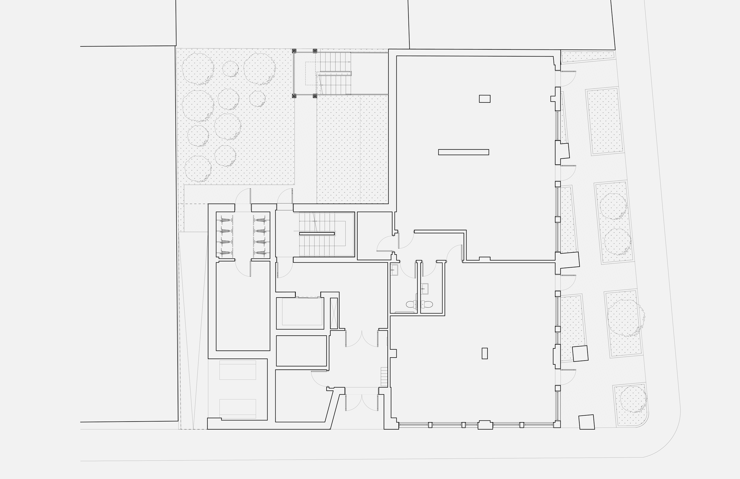
Plan du rez-de-chaussée

 
 
 
 

Plan du sous-sol

 

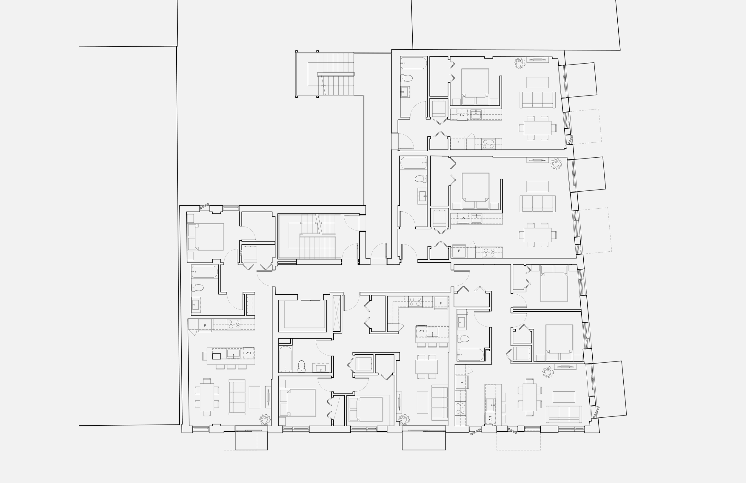
Plan du deuxième

 
 
 
 

Plan du troisième

 
 
 
 

Plan du quatrième

 
 
 
 

Plan du cinquième

 
 
 
 
 

Plan du sixième

 
 
Précédent
Précédent

Raoul

Suivant
Suivant

Résidence GN