Raoul

Situé à l’angle des rues Dieppe et Raoul-Jobin, au cœur du quartier Saint-Sauveur, Raoul est un projet résidentiel de douze logements qui conjugue densité urbaine, qualité de vie et respect du tissu bâti existant. Offrant une variété d’unités de 3 ½, 4 ½ et de spacieux 5 ½ sur deux étages qui sont tous traversants, le projet mise sur une lumière naturelle abondante et une ventilation naturelle pour assurer le confort des occupants.

En remplaçant un ancien garage, le projet contribue à une densification douce du secteur tout en s’inscrivant dans la continuité du contexte bâti. La volumétrie du bâtiment est modulée par des décrochés et un jeu de matériaux, notamment un changement de couleur de brique entre les volumes, qui morcèle le projet et allège son impact visuel. Un motif de brique en avancée à ce niveau évoque le jeu d’ombres créé par la tôle à baguette, ajoutant une texture dynamique à la façade.

Les logements du rez-de-chaussée bénéficient d’un accès direct sur la rue, favorisant des interactions conviviale avec le voisinage. Une porte cochère mène à une cour intérieure partagée où se trouvent balcons et espaces de rangement extérieurs, créant un lieu de rencontre et de détente pour les résidents. 

En retrait par rapport à la rue de Dieppe, le bâtiment s’aligne avec les constructions voisines et permet la continuité de la rangée d’arbres en cour avant, renforçant l’intégration paysagère du projet. Raoul s’inscrit ainsi dans une démarche de densification respectueuse, offrant des logements lumineux et bien pensés, tout en valorisant les caractéristiques architecturales du quartier.

Type de projet : Multifamilial
Année de construction : 2024
Localisation : Coin Raoul-Jobin et rue de Dieppe
Client : Girard et filles inc.
Photographe : Anne Rousseau

Les bas de Raoul - Disponibles ici

 

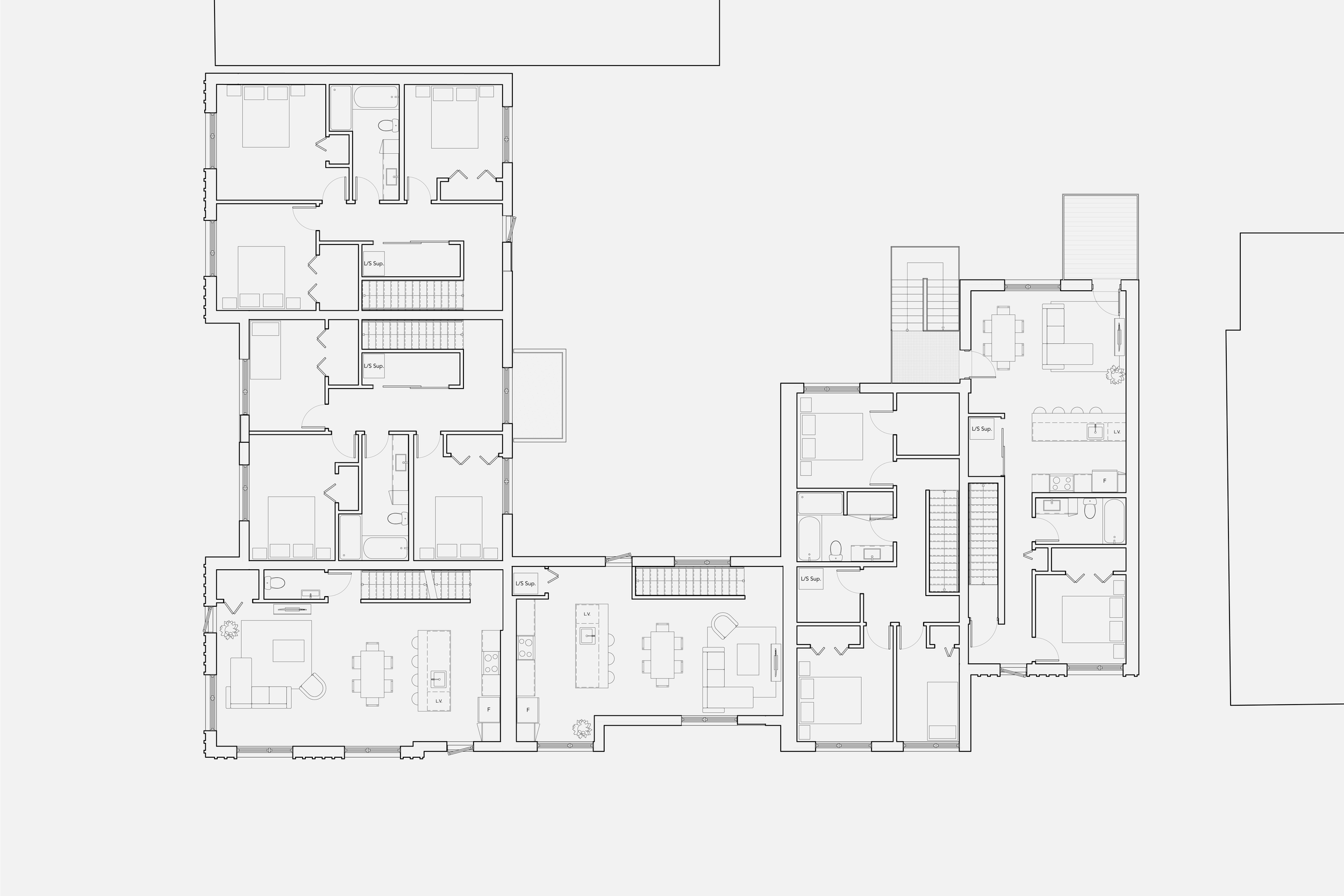
Plan du rez-de-chaussée

 
 
 
 
 
 
 

Plan du sous-sol

 
 
 

Plan du deuxième

 
 

Plan du troisième

 
 
 
Précédent
Précédent

Sandwicherie Baloney

Suivant
Suivant

Franky